2 CASES APARELLADES A LA SELVA DEL CAMP
Promotor: Privat
Autor del Projecte: Anna Ollé / Arquitecta
Aparellador: Josep Lluís Garriga
Constructor: http://www.constecnia.com
Casa aparellada per a dos germans
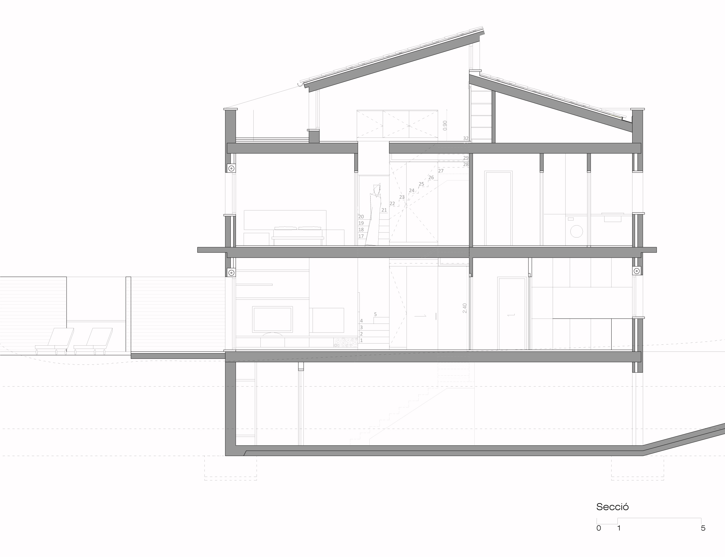
Obra nova a la Selva del Camp per a habitatges aparellats. En un mateix conjunt s’han generat espais adaptats al programa funcional de cada habitatge i les necessitats de les dues famílies. S’ha treballat l’accés i les façanes dels habitatges per a crear diferents zones i aportar intimitat a les estances.
La distribució dels habitatges és asimètrica i únicament es comparteix l’accés al garatge. A la planta baixa, l’habitatge A integra el bloc d’escales en el menjador, disposa d’una cuina en cantonada i un bany complet. L’habitatge B disposa d’una estança més en planta baixa i el bloc d’escales es situa en el rebedor. A la planta primera tots dos habitatges tenen de dues estances, una suite amb vestidor i dos banys amb una distribució adaptada a cada nucli familiar.






