Fer una casa per fer-hi vida
Una casa és molt més que un refugi. Una casa és un lloc agradable, per fer que la vida sigui més fàcil i planera; és un lloc estimulant, per acompanyar les vivències de qui hi viu; és un lloc adaptable, per donar resposta a les necessitats dels seus habitants… I perquè tot això pugui ser, una casa és, per damunt de tot, arquitectura… Una arquitectura que es pugui obrir a l’exterior però que també s’arreceri en el caliu interior; que sigui ferma i estable però que també es pugui transformar; que la puguem compartir però que ens doni alhora intimitat.
CASA UNIFAMILIAR A LA SELVA DEL CAMP
Promotor: Privat
Autor del Projecte: Anna Ollé / Arquitecta
Aparellador: Josep Lluís Garriga
Constructor: Construccions Pintaluba S.L.
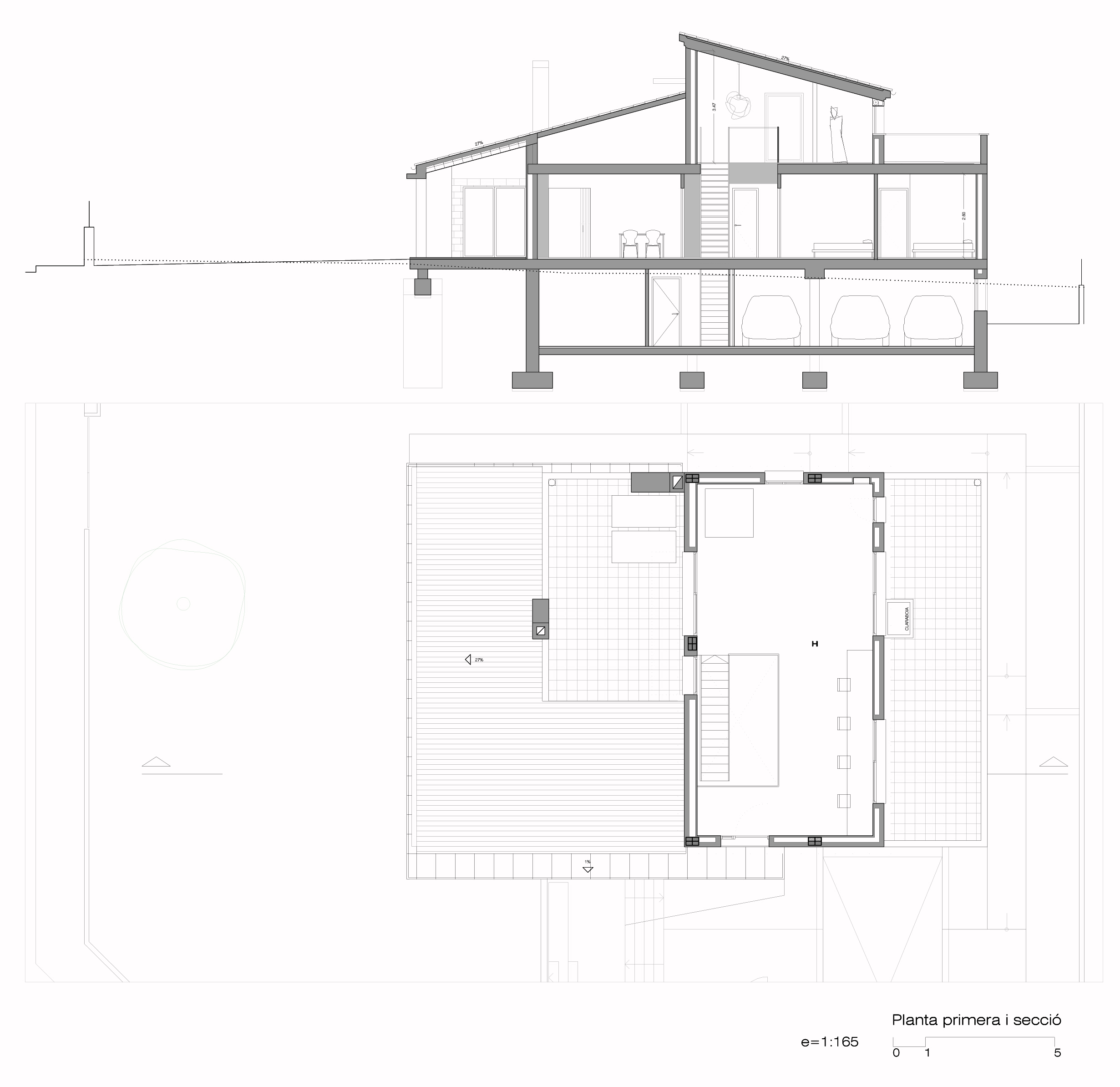
Dissenyada per una família amb fills, els exteriors i interiors responen a la premisa d’espais amplis i confortables. La casa s’adapta al pas del temps i dels canvis.
L’exterior separa la part més pública del jardí més privat. El voladís i el revestiment de travertí marquen la zona de dia i acompanyen amb la vorera a un mateix nivell tots els accessos de la planta baixa. Una rampa exterior, relaciona el nivell del carrer amb la vorera i terrassa de planta baixa, així doncs, es tracta d’una solució que permet que el xalet sigui del tot accessible.
L’interior es va dissenyar amb espais amplis per adaptar-se fàcilment a les necessitats canviants de la llar. L’accés amb l’escala n’és l’element més important, ja que crea una continuitat amb el menjador mitjançant un armari amb portes corredisses, així com la relació amb l’estudi superior. Es crea una circulació circular entre el menjador i l’entrada i una projecció de l’espai mitjançant les portes corrdisses. La mateixa arquitectura dóna caràcter a l’habitatge i en soluciona els requeriments d’emmagatzematge.





