BAR-CAFETERIA CHIARS, SANT CUGAT
Promotor: Privat
Arquitecta: Anna Ollé Simó
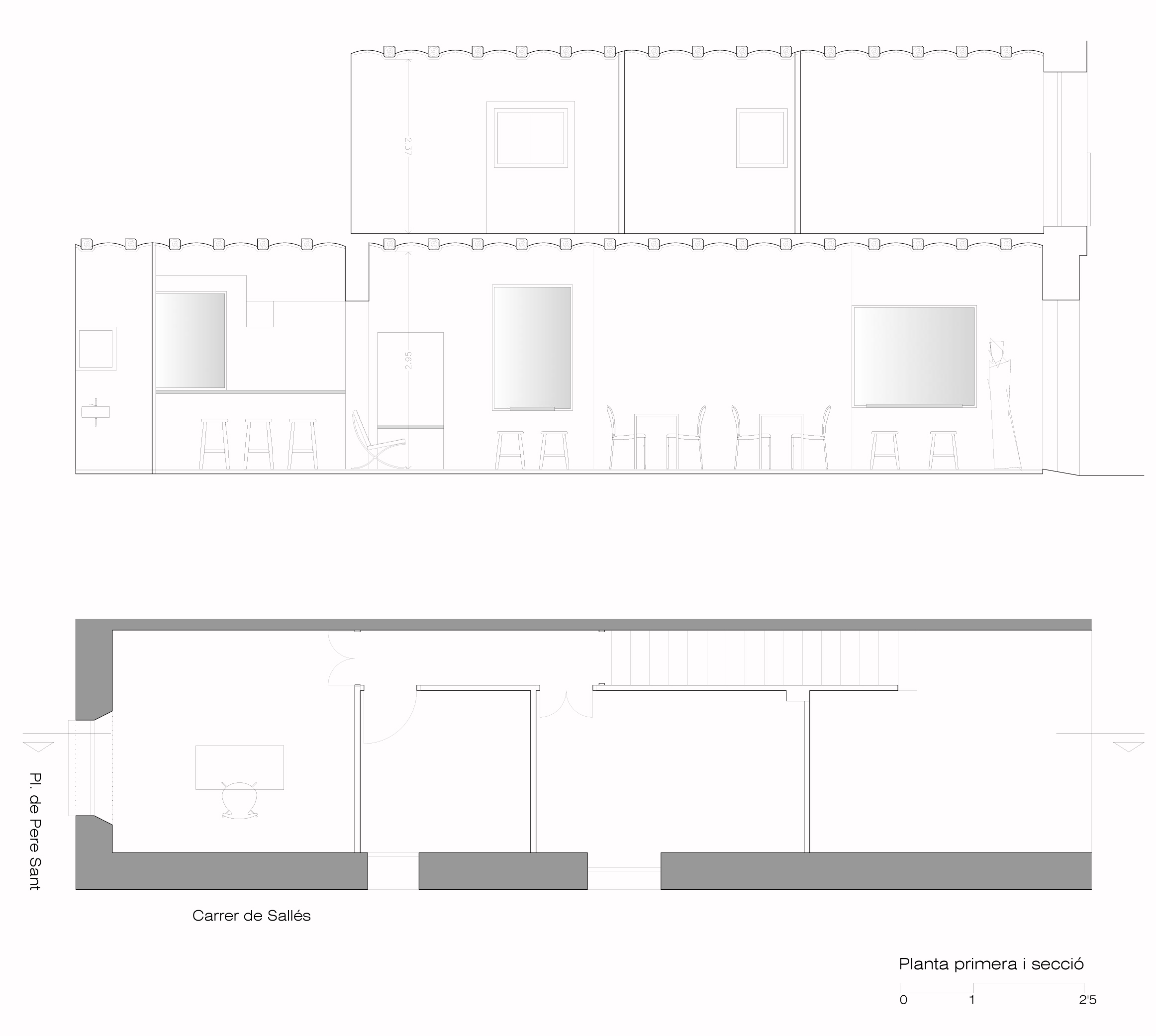
Petit bar-cafeteria davant el mercat de Sant Cugat. El local consta de dos ambients en un mateix espai que permet distingir la zona de venda de pa, situada a l’accés del local i la cafeteria. Tots dos ambients es distribueixen en dues franges, a la part esquerra se situa la zona de servei amb el mostrador i l’equipament per la cafeteria i a la part dreta la barra i les taules pels clients.
Els acabats dels paraments permeten diferenciar els dos espais del local. La fleca destaca amb un paviment de rajola arlequina i s’ha deixat vista la paret de maó massís darrere al mostrador. La resta de local té un acabat enguixat blanc i el paviment de parquet. El mobiliari de fusta i la contrabarra d’acer inoxidable agafen protagonisme sobre els paraments blancs del local.




