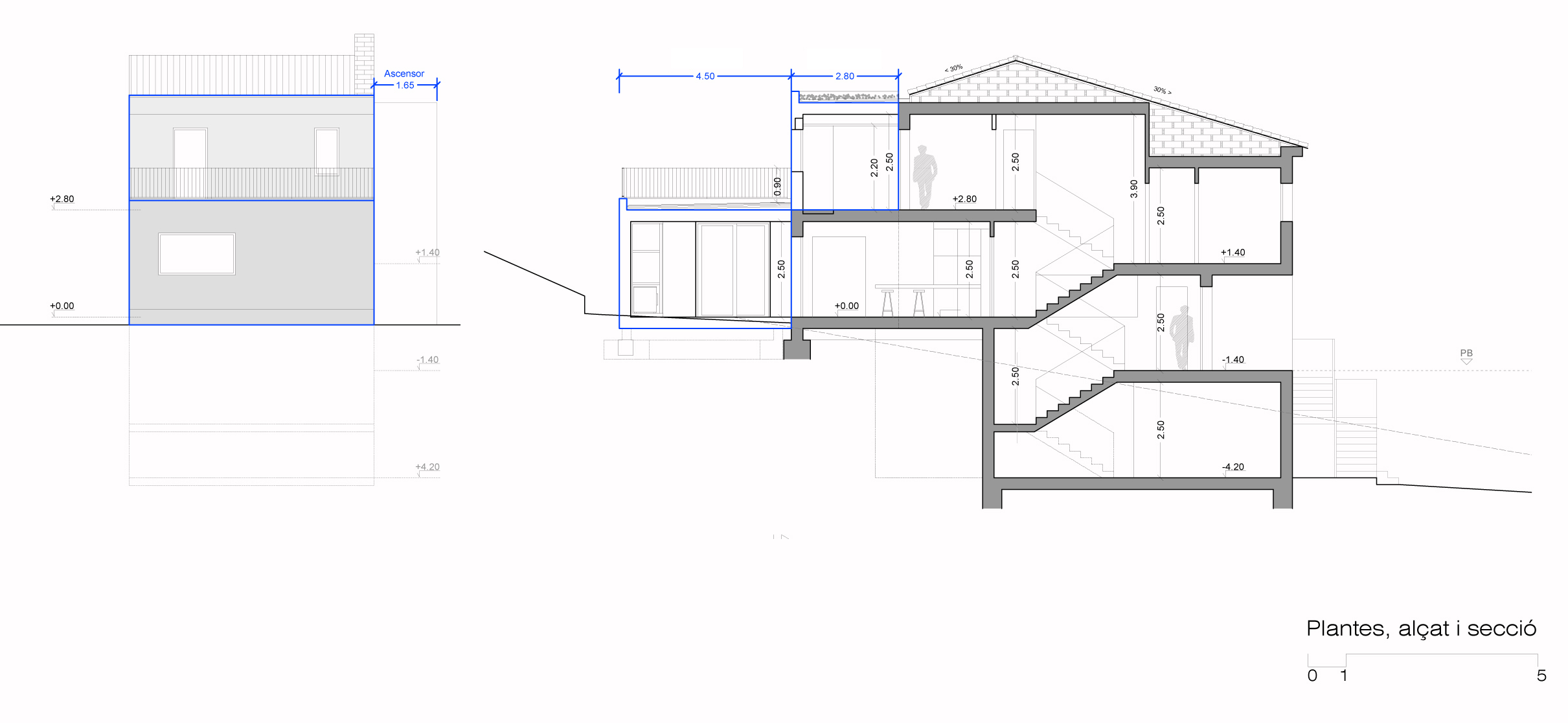
REFORMA DE CASA UNIFAMILIAR A LA MÓRA, TARRAGONA
Promotor: Privat
Arquitecta: Anna Ollé Simó
Arquitecte tècnic: Joan M. Tomàs
Ampliació i reforma a la Móra per a habitatge en edificació aïllada de PB+4. L’habitatge es desenvolupa en quatre nivells a partir de forjats a mitja alçada, de tal forma que cada replà d’escala comunica amb una planta independent. La reforma es realitza a la façana posterior, on es decideix ampliar la planta baixa per incorporar una sala – menjador. La coberta d’aquest nou volum es destina a terrassa i s’incorpora una habitació i un bany al nivell superior. Aquesta ampliació permet generar visuals creuades entre estances i millorar la sensació d’amplitud en els espais. En la reforma també s’instal·la un ascensor a la façana longitudinal vinculant-lo amb el bloc d’escales.












