NOU CASAL DEL NUCLI ANTIC
I REFORMA DE L’ANTIGA ESGLÉSIA DE SANTA LLÚCIA
Carrer Hospital 10, La Selva del Camp
Promotor: Ajuntament de la Selva del Camp
Autor del Projecte: Anna Ollé / Arquitecta
Arquitecte tècnic: Joan M. Tomàs
Constructor: Construccions Miró
La intervenció es realitza a l’equipament municipal preexistent situat al Carrer Hospital nº13 de la Selva del Camp.
El projecte es divideix amb la reforma de l’antiga església de Santa Llúcia com a auditori i l’ampliació de l’edifici annex com a casal d’entitats.
L’ampliació s’ha realitzat amb una gran obertura en cantonada que dóna lleugeresa a l’edifici. Aquesta finestra, orientada a sud-est, permet disposar d’una sala amb vistes sobre la pròpia teulada de l’antiga església i de les cobertes del nucli antic.
La placeta exterior s’ha deixat lliure, amb un gran banc, també en cantonada, per a les tertúlies dels veïns, justament a la part més assolellada de l’espai.
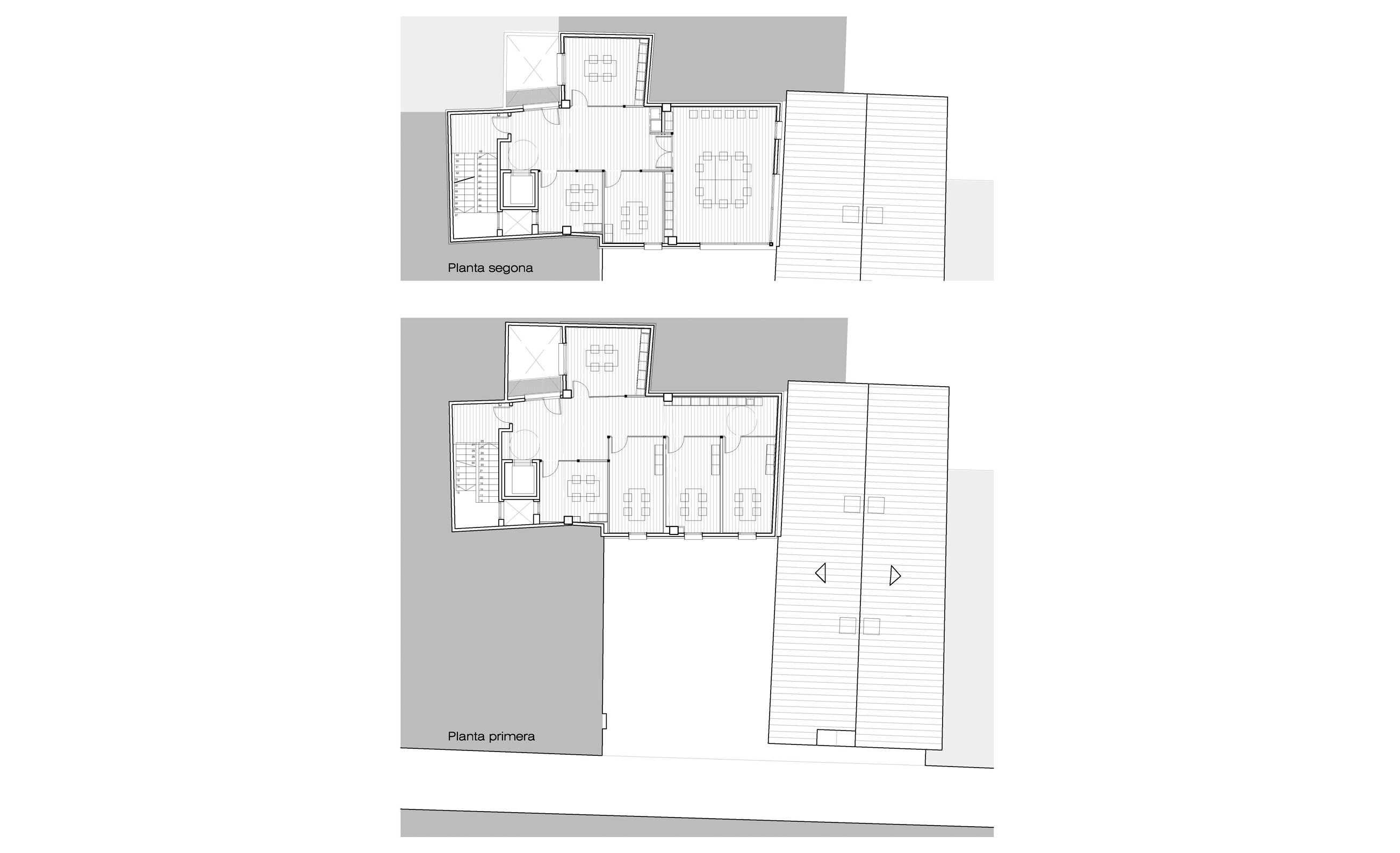
El Casal del Nucli Antic tindrà diferents usos: En planta baixa es traslladarà el Jutjat de pau i les plantes primera i segona es posaran a disposició de les entitats del poble perquè hi puguin organitzar les seves activitats.
Es vol potenciar amb aquest projecte les iniciatives dels diversos col·lectius al Nucli Antic d’acord amb el projecte del Pla de Barris del Nucli Antic de la Selva del Camp.
El casal disposa de diferents espais per poder donar servei a molts tipus d’activitats: despatxos per a reunions, sales amb diferent capacitat per a trobades, xerrades formacions.
L’Auditori de Santa Llúcia s’ha reformat creant un distribuidor previ i millorant-ne l’acústica, la climatització, el mobiliari l’equipament audiovisual.









