Residència Montblanc a Manresa

RESIDÈNCIA MONTBLANC A MANRESA
Promotor: Privat
Arquitectes: Alícia Vila i Jaume Espinal
CONSTRUCTORA OBRALLAR de Manresa

A la Residència Montblanc s’han realitzat obres generals d’adaptació a la normativa actual. A la planta baixa s’ha generat un espai comunitari per als residents, i s’ha adaptat les zones d’infermeria a les necessitats reals dels usuaris, amb possibilitat d’assistència puntual per part dels especialistes que realitzen les visites mèdiques. A la planta sota resant s’ha remodelat la sala d’estar i el menjador. En general s’han millorat els banys i projectat noves habitacions en espais que quedaven sense ús. També s’han remodelat algunes habitacions existents, així com l’espai exterior del pati.

Reforma Loft a Puig-Reig

REFORMA DE LOFT A L’AMETLLA DE MEROLA
Promotor: Privat
Arquitecta: Alícia Vila

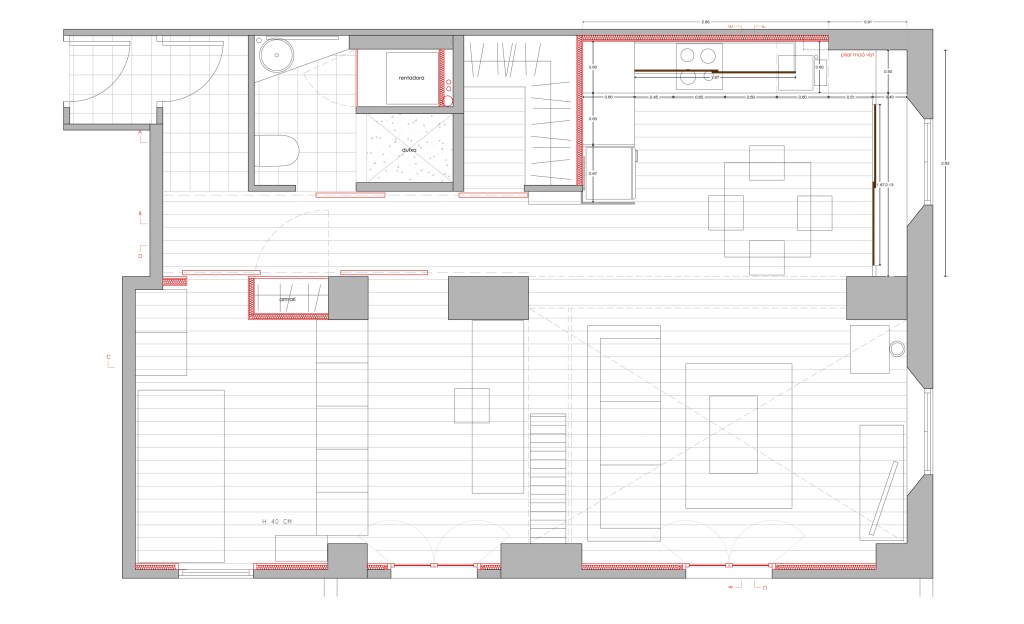
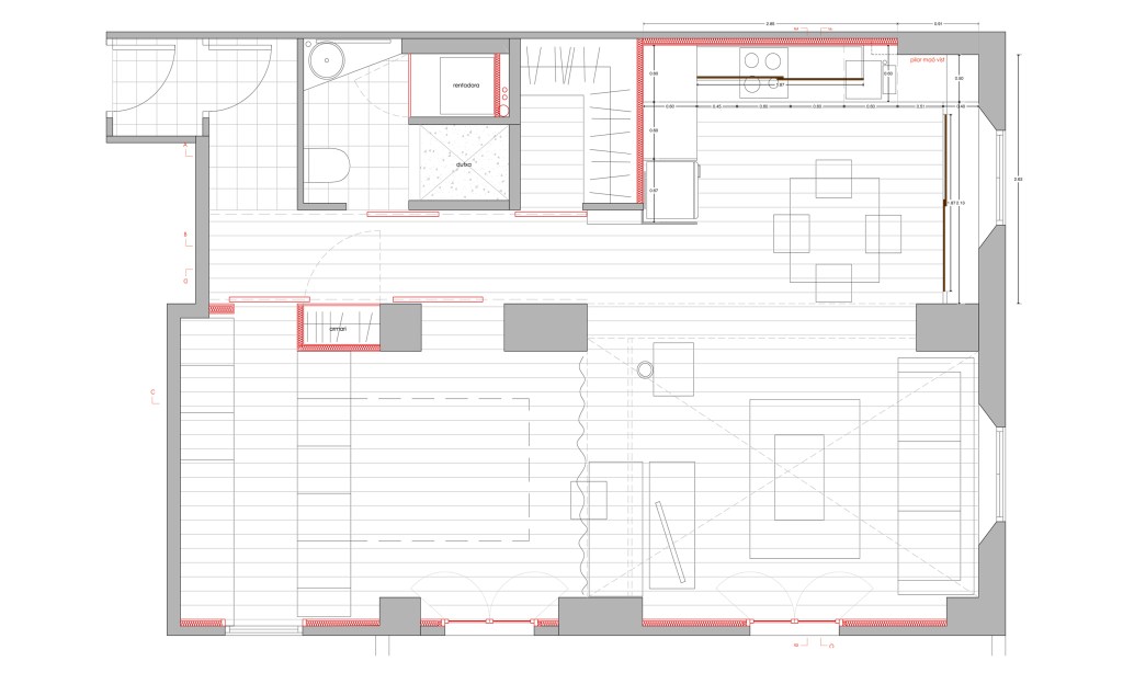
Reforma de loft a Puig-Reig per a habitatge dúplex en planta baixa. L’habitatge consta d’una doble alçada que emmarca el menjador i dos altells. La cuina està oberta al menjador, separada visualment per una gran arcada d’obra de fàbrica. En el sota escala s’incorpora un estudi i s’aprofita l’extensió dels graons a mode de taula amb calaixeres. En el segon nivell es situa el dormitori principal des de on es pot observar la volta de canó que tanca l’espai menjador.

Càmping Riembau a Platja d Aro

El projecte de reforma de la zona de piscina es va realitzar per fases, adaptant-nos a les necessitats de cada temporada. Es van crear diferents zones d’estar, de platja i de pas, amb les estructures de vela i les jardineres que delimiten espais i recorreguts.

CÀMPING RIEMBAU A PLATJA D’ARO
Promotor: Privat
Autors del projecte:
ohrizons / Fernando Lafuente/ Paisatgista – Anna Ollé /Arquitecte

info@escalimetre.cat

El Taller Coworking

El taller coworking
Carrer Joan Domingo, 8 Bx, La Selva del Camp
Promotor: Privat
Autor del Projecte: Anna Ollé / Arquitecta
Constructor: Construccions Pintaluba S.L.

El taller coworking és un espai acollidor per a compartir despatx entre professionals a la Selva del Camp (Tarragona). Es distribueix en tres espais en planta baixa, l’espai principal integra l’accés al local i s’organitza a partir de vuit taules que permeten acollir els coworkers. A l’extrem oposat de l’accés hi ha una gran sala aïllada acústicament, amb una taula central, per dur a terme reunions i xarrades amb els clients. El tercer espai consta d’un office equipat pels coworkers i un bany adaptat.

La zona de treball i de reunions són espais diàfans i estan separats per un parament vidriat. La comunicació visual entre els espais millora la sensació d’amplitud i permet l’accés de la llum natural. Els materials utilitzats són naturals i atemporals per a crear un ambient proper i càlid per a tots els professionals que hi treballem. Els paraments del local i l’estructura integren l’emmagatzematge de tal forma que la percepció de l’espai és neta i lliure de mobiliari dissonant.

Reforma i ampliació de Santa Llúcia

NOU CASAL DEL NUCLI ANTIC
I REFORMA DE L’ANTIGA ESGLÉSIA DE SANTA LLÚCIA
Carrer Hospital 10, La Selva del Camp
Promotor: Ajuntament de la Selva del Camp
Autor del Projecte: Anna Ollé / Arquitecta
Arquitecte tècnic: Joan M. Tomàs
Constructor: Construccions Miró

La intervenció es realitza a l’equipament municipal preexistent situat al Carrer Hospital nº13 de la Selva del Camp.
El projecte es divideix amb la reforma de l’antiga església de Santa Llúcia com a auditori i l’ampliació de l’edifici annex com a casal d’entitats.
L’ampliació s’ha realitzat amb una gran obertura en cantonada que dóna lleugeresa a l’edifici. Aquesta finestra, orientada a sud-est, permet disposar d’una sala amb vistes sobre la pròpia teulada de l’antiga església i de les cobertes del nucli antic.
La placeta exterior s’ha deixat lliure, amb un gran banc, també en cantonada, per a les tertúlies dels veïns, justament a la part més assolellada de l’espai.
El Casal del Nucli Antic tindrà diferents usos: En planta baixa es traslladarà el Jutjat de pau i les plantes primera i segona es posaran a disposició de les entitats del poble perquè hi puguin organitzar les seves activitats.
Es vol potenciar amb aquest projecte les iniciatives dels diversos col·lectius al Nucli Antic d’acord amb el projecte del Pla de Barris del Nucli Antic de la Selva del Camp.
El casal disposa de diferents espais per poder donar servei a molts tipus d’activitats: despatxos per a reunions, sales amb diferent capacitat per a trobades, xerrades formacions.
L’Auditori de Santa Llúcia s’ha reformat creant un distribuidor previ i millorant-ne l’acústica, la climatització, el mobiliari l’equipament audiovisual.

Unifamiliar a la Móra

REFORMA DE CASA UNIFAMILIAR A LA MÓRA, TARRAGONA
Promotor: Privat
Arquitecta: Anna Ollé Simó
Arquitecte tècnic: Joan M. Tomàs

Ampliació i reforma a la Móra per a habitatge en edificació aïllada de PB+4. L’habitatge es desenvolupa en quatre nivells a partir de forjats a mitja alçada, de tal forma que cada replà d’escala comunica amb una planta independent.  La reforma es realitza a la façana posterior, on es decideix ampliar la planta baixa per incorporar una sala – menjador. La coberta d’aquest nou volum es destina a terrassa i s’incorpora una habitació i un bany al nivell superior. Aquesta ampliació permet generar visuals creuades entre estances i millorar la sensació d’amplitud en els espais. En la reforma també s’instal·la un ascensor a la façana longitudinal vinculant-lo amb el bloc d’escales.

Belén estilistes

BELÉN ESTILISTES
Carrer Paretdelgada 1, La Selva del Camp
Promotor: Privat
Autors del projecte: Anna Ollé Simó, Arquitecta / Marta Magrinyà, Interiorista

Reforma a la Selva del Camp per a perruqueria en edifici en cantonada. En la distribució del local s’ha diferenciat entre un espai per a nens, pròxim la zona d’espera, i un espai exterior pels clients, vinculat amb la zona de pentinat. El local també disposa de banys adaptats i zona de safareig i office. La distribució del local és diàfana i permet la ventilació creuada i la il·luminació natural dels espais.

A la part central se situa la zona d’espera, separant la zona de treball de l’accés al local. El nucli de serveis integra mobiliari en el parament per tal de donar suport per la zona de rentadors. En el parament oposat es distribueix la zona de pentinat amb capacitat per cinc clients.

Bar-cafeteria Chiars

BAR-CAFETERIA CHIARS, SANT CUGAT
Promotor: Privat
Arquitecta: Anna Ollé Simó

Petit bar-cafeteria davant el mercat de Sant Cugat. El local consta de dos ambients en un mateix espai que permet distingir la zona de venda de pa, situada a l’accés del local i la cafeteria. Tots dos ambients es distribueixen en dues franges, a la part esquerra se situa la zona de servei amb el mostrador i l’equipament per la cafeteria i a la part dreta la barra i les taules pels clients.

Els acabats dels paraments permeten diferenciar els dos espais del local. La fleca destaca amb un paviment de rajola arlequina i s’ha deixat vista la paret de maó massís darrere al mostrador. La resta de local té un acabat enguixat blanc i el paviment de parquet. El mobiliari de fusta i la contrabarra d’acer inoxidable agafen protagonisme sobre els paraments blancs del local.