REFORMA UNIFAMILIAR A AMETLLA DE MEROLA
Promotor: Privat
Autors del projecte: Alícia Vila
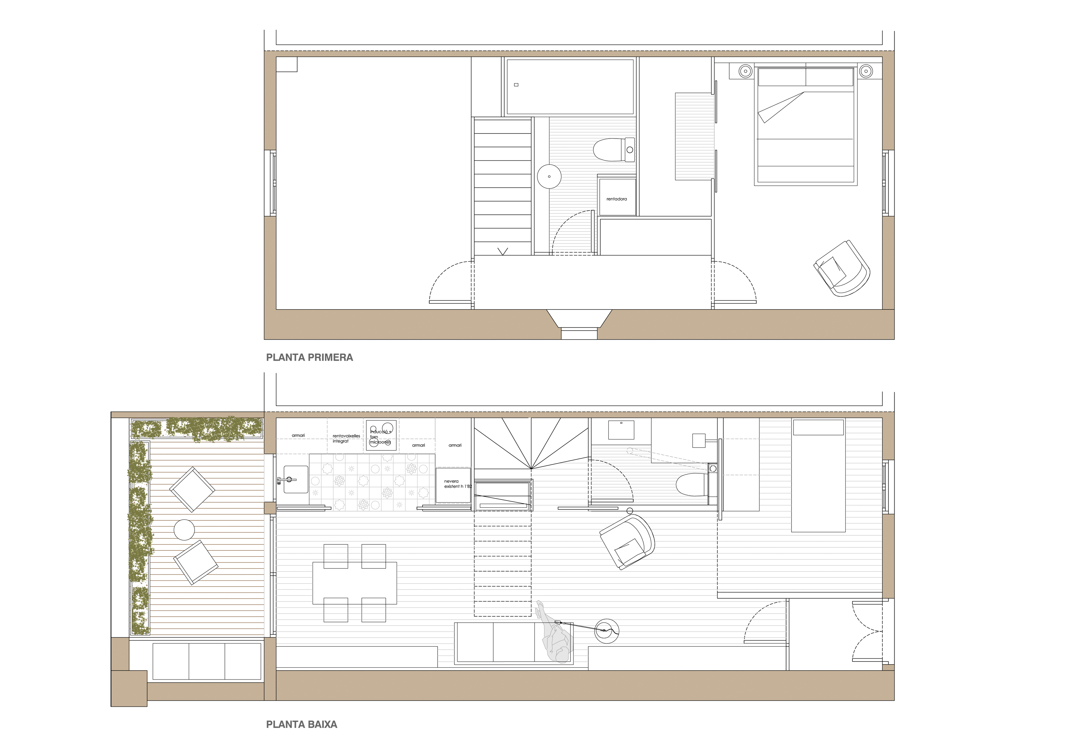
Reforma a Ametlla de Merola per habitatge unifamiliar entre mitgeres. L’habitatge es desenvolupa en un local de PB+1, les dues plantes tenen com a principal atractiu la volta de canó d’obra de fàbrica que cobreix la distància entre les dues mitgeres.
La planta baixa s’organitza a partir d’un nucli d’escales central, que separa dos ambients. En un costat es situa l’accés, una saleta i una habitació. Aquestes dues estances es relacionen a través d’un parament mòbil que permet la unió dels dos espais. A l’altre costat se situa la cuina i el menjador, comunicats a partir d’una gran corredera i amb accés a una terrassa. La saleta i el menjador formen part d’un únic espai però la seva relació amb les estances adjacents modifica el seu ús i per tant, el seu ambient. La planta primera s’organitza a partir de dues estances, una amb vestidor, i un bany complet.
El paviment de la planta baixa s’unifica a partir d’un parquet de fusta natural i la cuina es diferencia amb l’ús de rajoles hidràuliques. En els paraments verticals es manté visible la paret de pedra i es complementa la saleta amb un armari a mida.






